Paramétrage et Conception Automatisée

PARAMETRICS

Paramétrage facile de vos données de conception

Le module complémentaire PARAMETRICS offre des outils pour l’automatisation de la conception. Il permet de produire ou modifier automatiquement des plans CAO détaillés, des symboles et des modèles 3D grâce à de nombreuses fonctions paramétriques, juste en saisissant quelques paramètres. En combinaison avec les outils puissants de M4 DRAFTING, des processus complets peuvent ainsi être entièrement automatisés.
Funktionen zur Konstruktions- und Prozess-Automatisierung
Conception Automatisée
Parametric CAD M4 DRAFTING

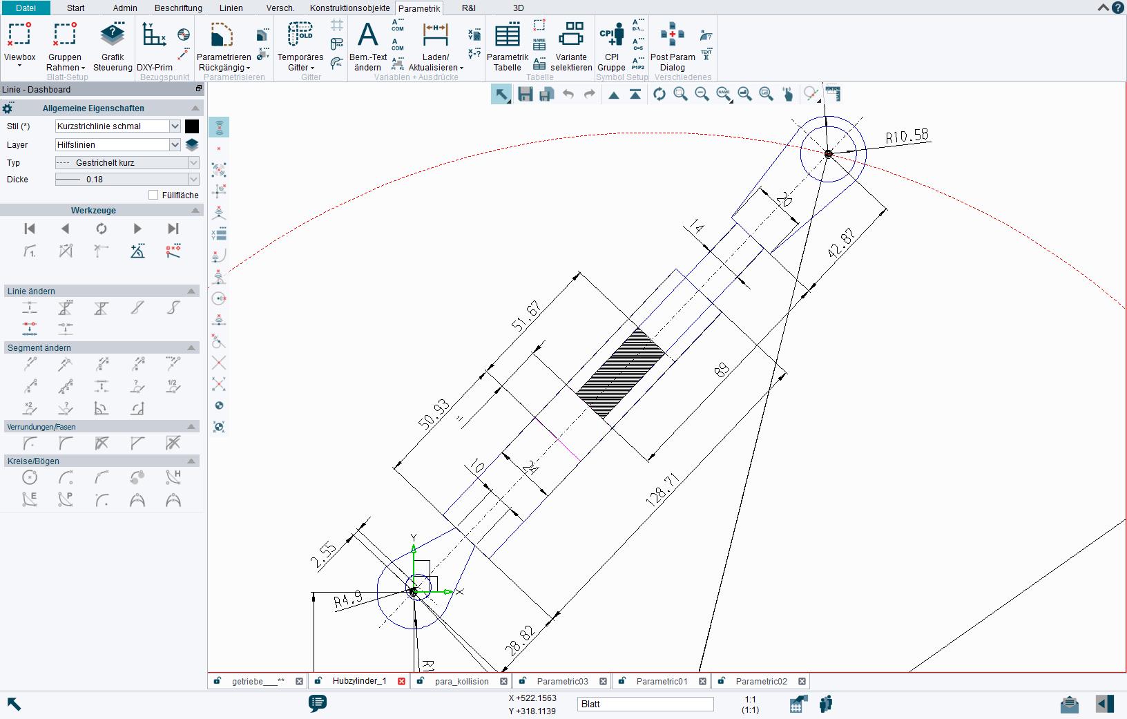
Créer une Géométrie Paramétrique

Les outils de dessin familiers de M4 DRAFTING vous permettent de créer et de coter facilement vos géométries. Son plateau d’outils de paramétrage vous donne ensuite accès à toutes les fonctionnalités supplémentaires pour paramétrer votre dessin. Utilisez les lignes de grille comme indicateur visuel de la géométrie supportée et une série de points de références statiques pour vous aider à régler les paramètres. Des lignes de groupe cadrent les zones de géométrie qui ne seront pas paramétrées (les points non cotés dans un groupe ne sont pas nécessairement entièrement contraints), et vous pouvez définir le comportement de ces éléments. Réglez vos tables de paramètres ou les textes de commande pour créer vos propres variables, puis enregistrez vos symboles paramétrés ou vos fichiers modèles pour qu’ils puissent être utilisés par d’autres concepteurs, à qui l’on pourra demander de sélectionner ou d’entrer des variables particulières.

Utiliser la Géométrie Paramétrique

Au moment du chargement, M4 DRAFTING calcule et prend automatiquement en compte les relations géométriques (tangentes, angles, symétries, colinéarité, etc.) entre les éléments, ce qui veut dire que vous pouvez rapidement créer des familles d’éléments, simuler des mouvements en 2D, tester les interférences ou valider l’intégrité de la conception. PARAMETRICS est souvent utilisé avec les langages de programmation Bacis1 et Bacis2 de M4, il est déployé sur des projets dans le monde entier pour l’automatisation complète conceptions.

 

M4 DRAFTING-Parametric-CAO-Conception-Automatisee-06_fr
Automatisation complète de votre processus d’entreprises

Automatisation complète de votre processus d’entreprises

Les grandes possibilités de personnalisation de M4 DRAFTING et les nombreuses interfaces fournies permettent, avec l’aide du module de paramétrage, d’automatiser complètement votre processus d’entreprise. De cette façon, des configurateurs spécifiques à l’entreprise peuvent être conçus, permettant de garantir que les dessins CAO nécessaires à la réalisation de l’offre sont générés de manière entièrement automatique. M4 DRAFTING s’intègre parfaitement dans vos processus d’affaires et vous donne l’avantage en matière d’automatisation.
Retour en haut